Strona główna
O nas
Profil działalności
Realizacje
Praca
Kontakt
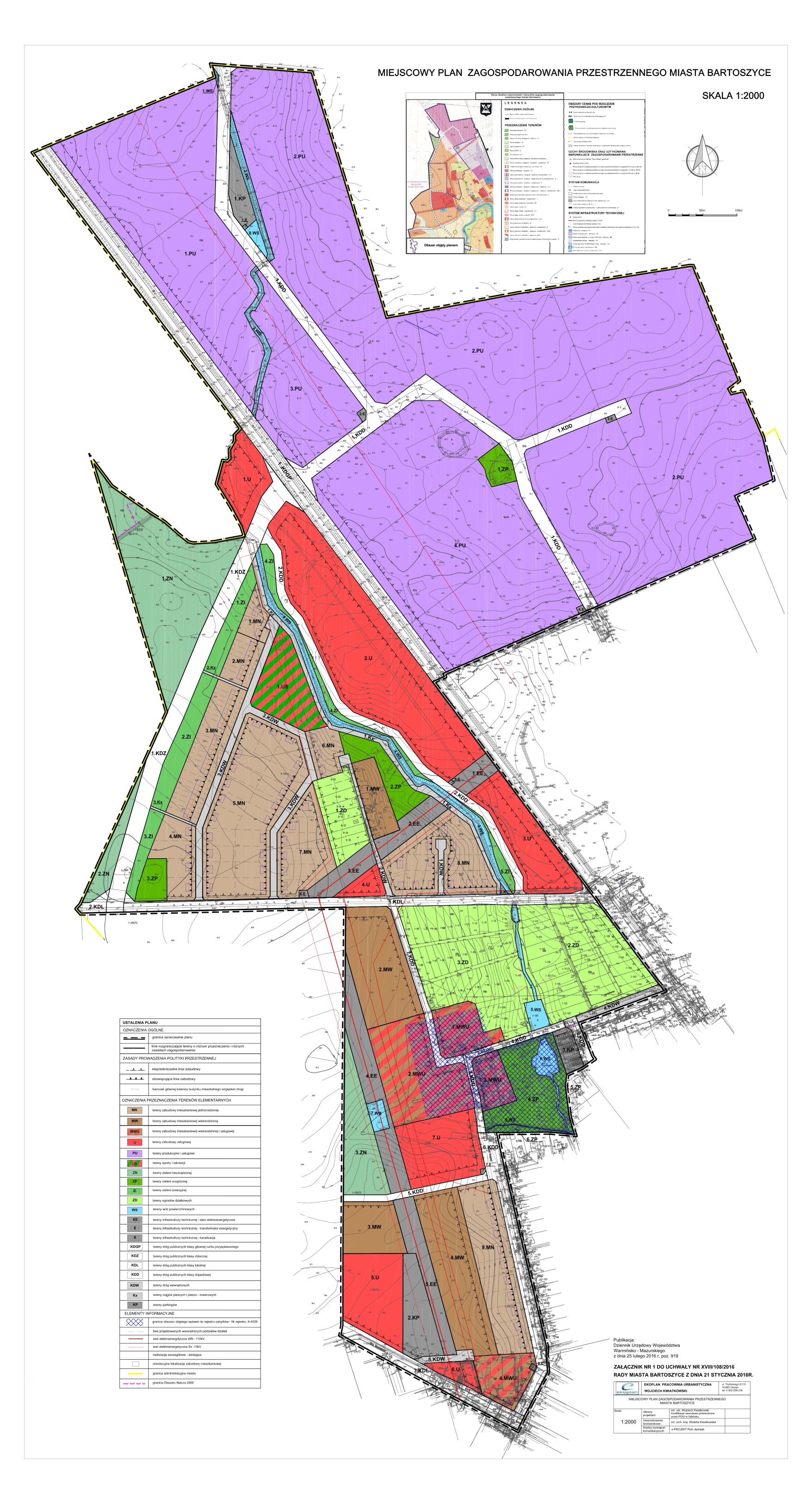
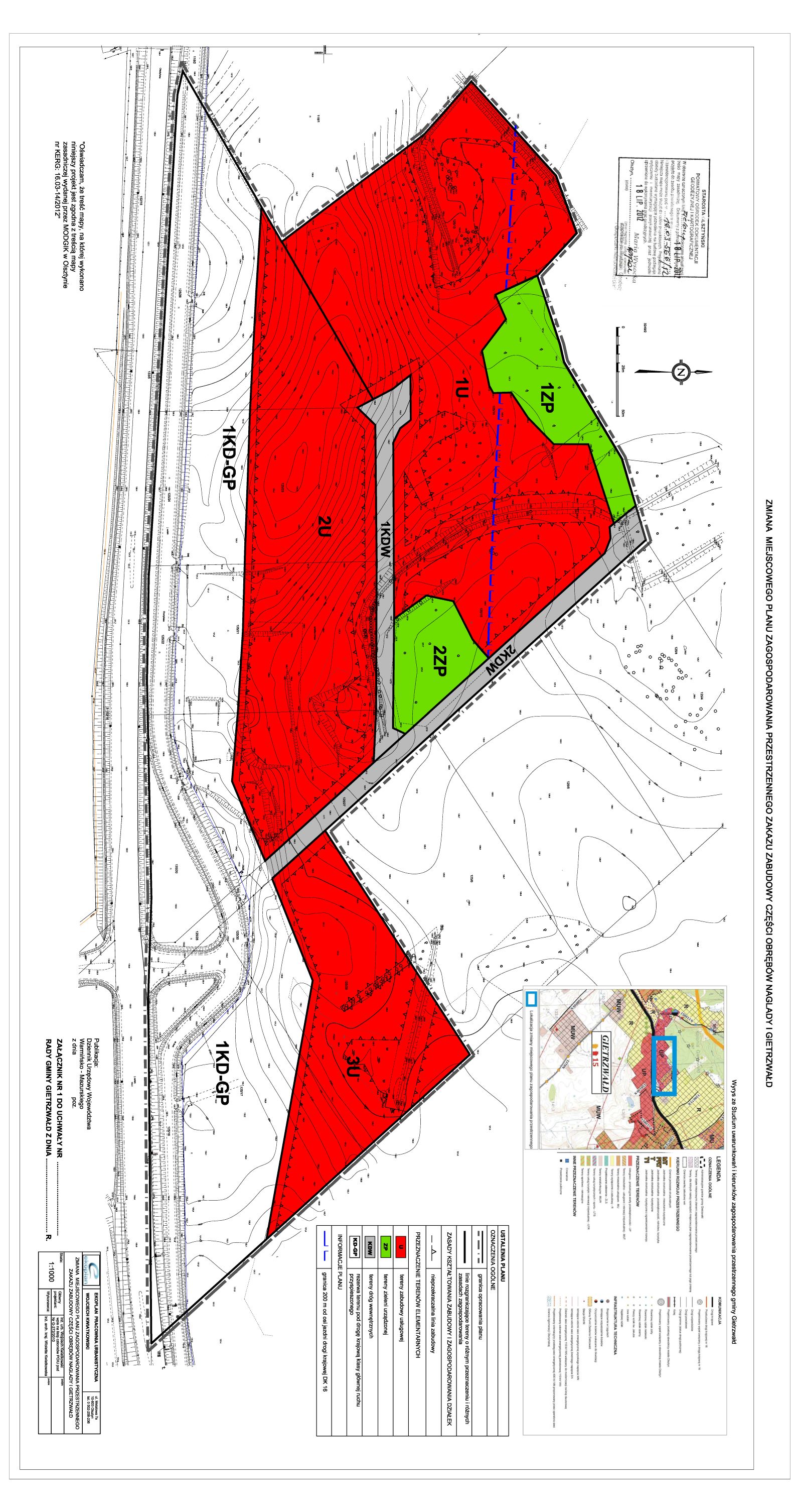
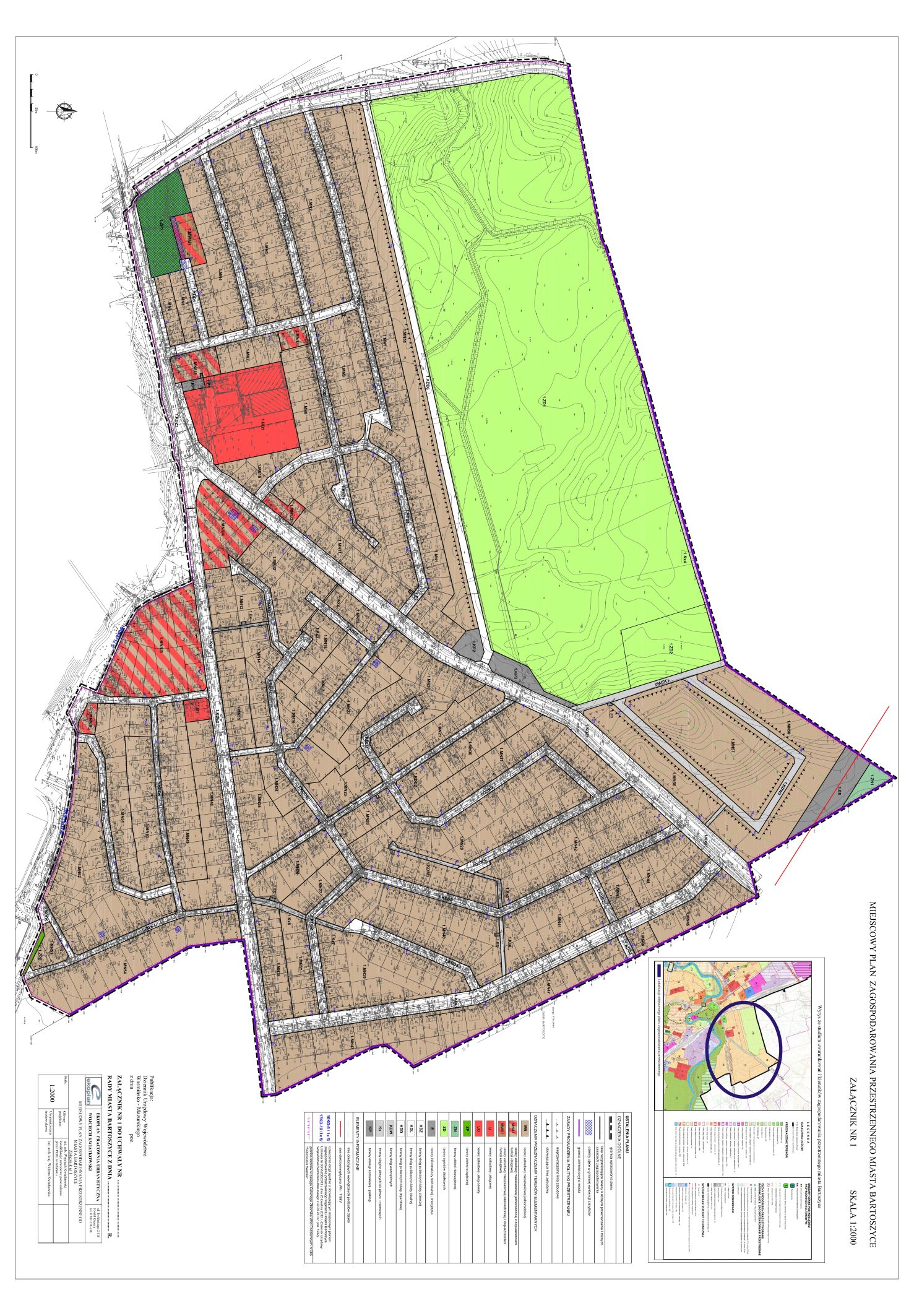
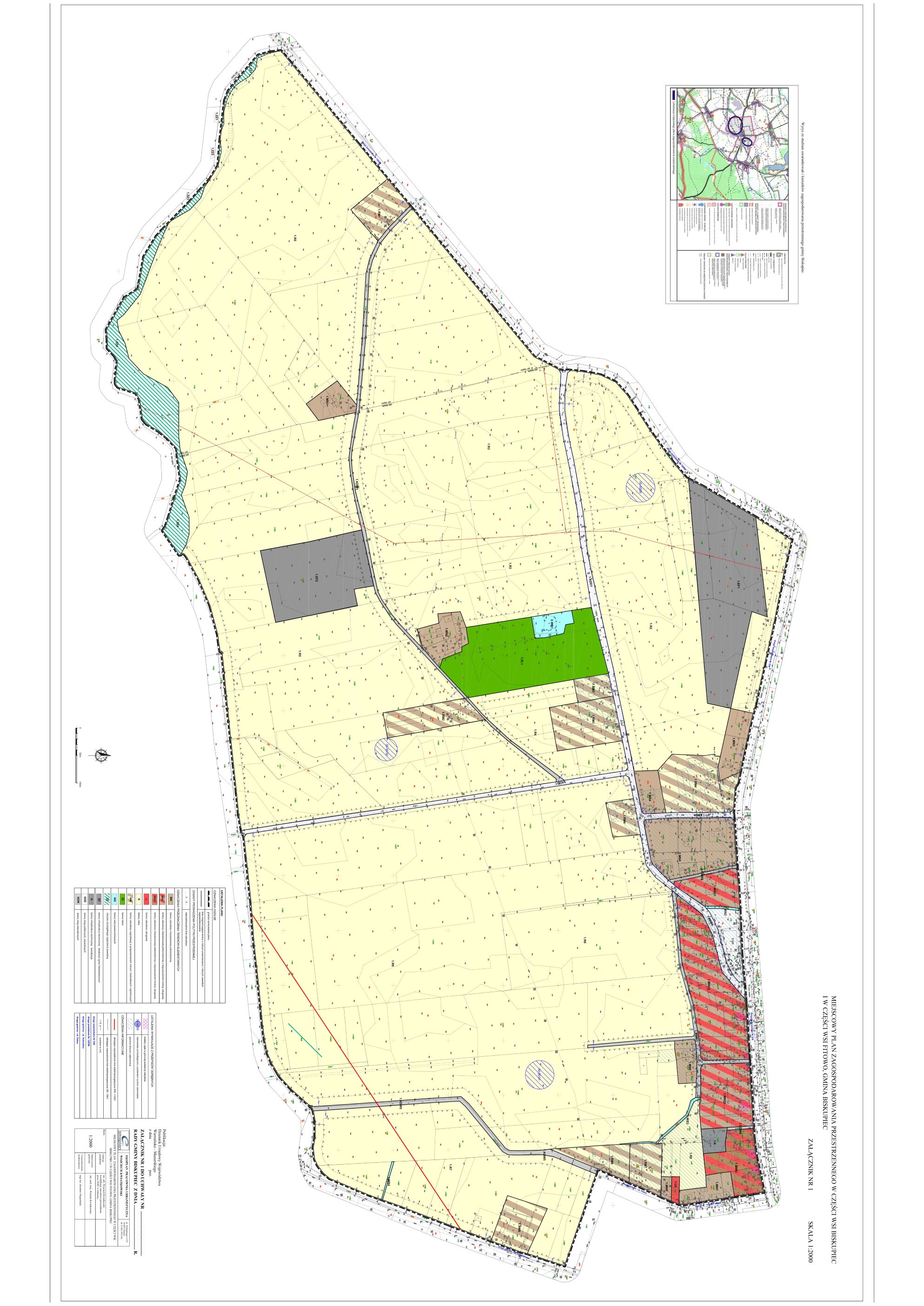
Realizacje
Wszystkie
Plany
Studia
Wizualizacje